Over dit huis
- Hoekwoning
- 3 kamers
- Ruime achtertuin met achterom
Omschrijving
“IDEALE WONING VOOR KOPERS DIE WILLEN MODERNISEREN EN HUN EIGEN STEMPEL WILLEN DRUKKEN”
Bent u handig en ziet u mogelijkheden? Dan is deze eengezinswoning aan de Rijnweg 152 in Monster dé kans om uw droomwoning te realiseren. De woning beschikt over een lichte woonkamer, dichte keuken, twee slaapkamers en een zonnige achtertuin. Hoewel de woning gemoderniseerd dient te worden, biedt dit volop mogelijkheden om alles volledig naar eigen wens in te richten.
Kortom: een woning met potentie, op een fantastische locatie. Steekt u de handen uit de mouwen? Plan snel een bezichtiging in en ontdek de mogelijkheden van Rijnweg 152 in Monster!
Ligging
De woning ligt op een gunstige locatie: op korte afstand van het centrum van Monster met winkels, scholen en sportvoorzieningen. Binnen enkele minuten staat u in de duinen of op het strand. Ook de uitvalswegen richting Den Haag, andere dorpskernen in het Westland en Hoek van Holland zijn snel bereikbaar.
Indeling
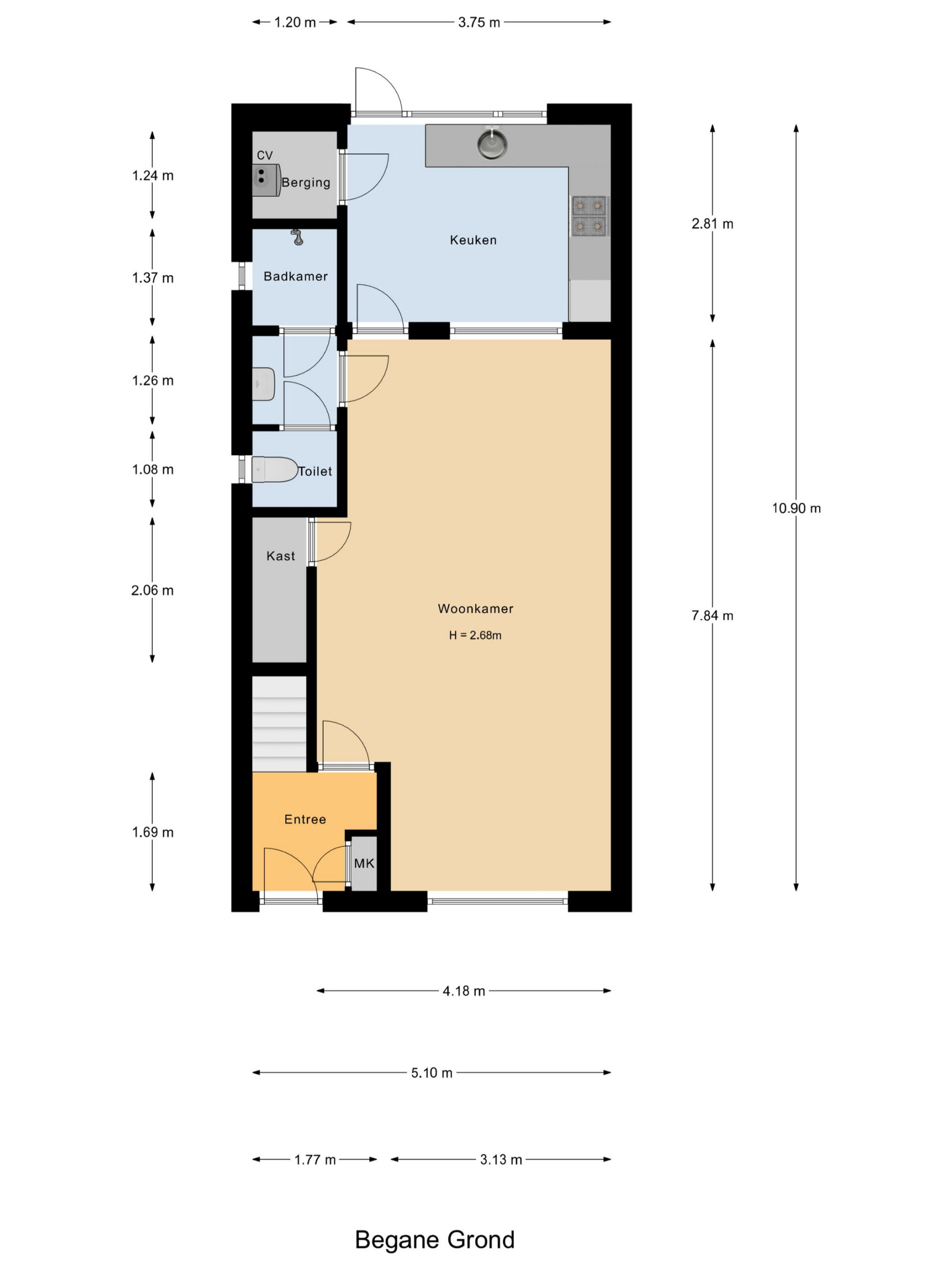
Begane grond
Via de voortuin bereikt u de entree. De hal biedt toegang tot de woonkamer aan de voorzijde, die dankzij de grote raampartijen heerlijk licht is. Achter de woonkamer vindt u de keuken met zicht op de achtertuin. Tevens bevinden zich op de begane grond de badkamer, separaat toilet en een handige berging met cv-opstelling.
De achtertuin is ca. 11 meter diep en grotendeels bestraat. Hier kunt u een heerlijke plek creëren om van de zon te genieten. Tevens beschikt de tuin over een achterom en een berging.
Eerste verdieping
Op deze verdieping zijn twee ruime slaapkamers aanwezig. Beide kamers beschikken over een dakkapel waardoor er veel licht en ruimte ontstaat.
Bijzonderheden:
• Het bouwjaar betreft 1932.
• De woonoppervlakte bedraagt 88 m2 en het perceeloppervlak bedraagt 184 m2
• De woning beschikt over energielabel F (geldig t/m 03-06-2035).
• De woning beschikt over 2 slaapkamers.
• Nabij strand, duinen en centrum van Monster
• Er is geen NVM vragenlijst en lijst van zaken aanwezig.
• In de koopovereenkomst worden de niet-bewoningsclausule, de asbestclausule en de ouderdomsclausule opgenomen.
Vraagprijs: € 365.000,-
Oplevering: In overleg.
GEÏNTERESSEERD IN DEZE WONING? NEEM GERUST UW EIGEN AANKOOPMAKELAAR MEE!
Kenmerken
- Vraagprijs € 365.000,-
- Status Onder bod
- Aanvaarding In overleg
- Eigendomssituatie Volle eigendom
- Soort woonhuis Hoekwoning
- Bouwjaar 1932
- Daktype Zadeldak
- Woonoppervlakte 88 m²
- Perceeloppervlakte 184 m²
- Inhoud 311 m³
- Aantal kamers 3 (2 slaapkamers)
- Aantal badkamers 1 badkamer
- Badkamervoorzieningen Inloopdouche
- Aantal woonlagen 2
- Voorzieningen Glasvezel kabel, natuurlijke ventilatie
- Energielabel F
- Verwarming Cv ketel
- Warm water Cv ketel
- Ligging Aan rustige weg, in woonwijk
- Tuin Achtertuin
- Tuinoppervlakte 61 m²
- Tuin ligging Noordwest
- Soort parkeergelegenheid Openbaar parkeren
Foto’s en video’s
Virtuele tour
Plattegronden
Over dit huis
- Hoekwoning
- 3 kamers
- Ruime achtertuin met achterom
Bezichtiging plannen?
Bent u geïnteresseerd in de woning? En wilt u eens binnen kijken?
Bezichtiging plannenOntdek de omgeving
Niet gevonden wat je zoekt?

Een afspraak plannen
We helpen je graag verder met jouw woonwensen, laat je gegevens en bericht achter!
Bezichtiging plannen
Vul onderstaand formulier in om een bezichtiging te plannen
Taxatie aanvragen
Vul onderstaand formulier in om een taxatie in te plannen