Broch Makelaars
Broch Makelaars
Valkenboslaan 133, 's-gravenhage - Broch Makelaars
Alle foto’s
's-Gravenhage

Valkenboslaan 133

  • 96m²
  • 5
€ 375.000 k.k.
Over dit huis
  • Dit charmante appartement beschikt over een woonkamer ensuite met schuifdeuren, sierplafonds en een open haard
  • U woont hier op korte afstand van winkels, horeca en openbaar vervoer, met het centrum én het strand binnen handbereik.
  • Dankzij de gunstige ligging én een mix van voorzieningen is Valkenboskwartier een fijne thuisbasis voor jonge professionals, gezinnen en iedereen die het stadsleven met gezelligheid en karakter wil combineren.
Omschrijving

’EEN SFEERVOL 5-KAMERAPPARTEMENT MET HOGE PLAFONDS EN VOLOP MOGELIJKHEDEN OM HET GEHEEL NAAR EIGEN WENS TE MAKEN!’

Dit charmante appartement beschikt over een woonkamer ensuite met schuifdeuren, sierplafonds en open haard, een klein balkon aan de voorzijde, 3 slaapkamers, een aparte keuken en separaat toilet en douche. Dankzij de grote raampartijen aan zowel voor- als achterzijde is het een opvallend lichte woning met een ruimtelijk gevoel.

Locatie
Het Valkenboskwartier is een levendige en karaktervolle stadswijk in Den Haag waar authentieke gevels, sfeervolle straten en een groene pleinen samenkomen. U woont hier op korte afstand van winkels, horeca en openbaar vervoer, met het centrum én het strand binnen handbereik. Dankzij de gunstige ligging én een mix van voorzieningen is Valkenboskwartier een fijne thuisbasis voor jonge professionals, gezinnen en iedereen die het stadsleven met gezelligheid en karakter wil combineren.

Appartement
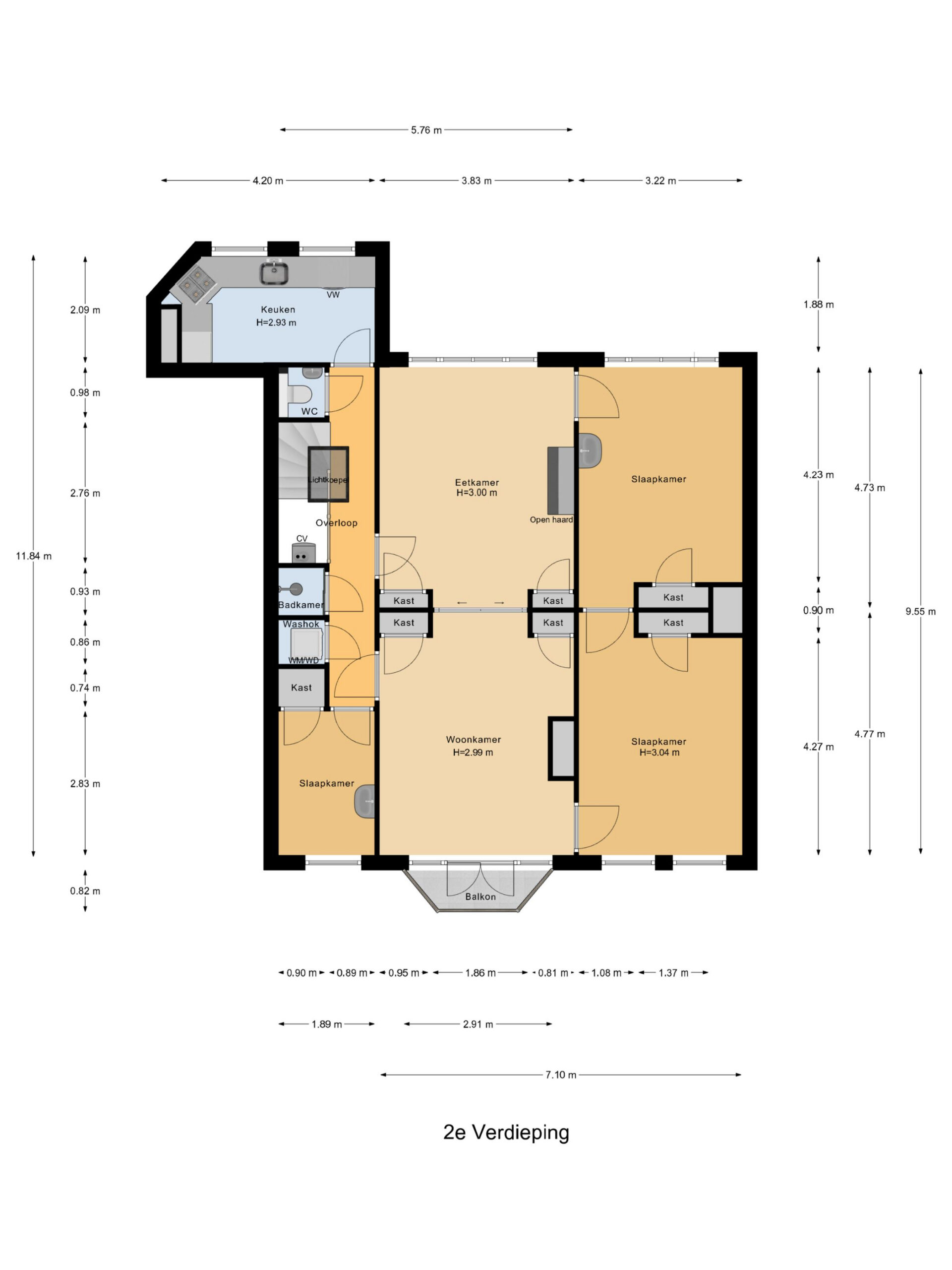
Indeling
Via het portiek bereikt u de entree van de woning op de bovenste verdieping. De trap leidt naar de hal, waar dankzij de lichtkoepel opvallend veel daglicht binnenvalt. Vanuit hier zijn alle vertrekken bereikbaar.

De woonkamer ensuite ligt aan de voorzijde en valt op door de hoge plafonds met sierlijsten, paneeldeuren en de fraaie ensuite separatie met vaste kasten die de woon- en eetkamer op sfeervolle wijze met elkaar verbindt. Openslaande deuren geven toegang tot het balkon aan de voorzijde, met vrij uitzicht over de straat en het groen. Aan de achterzijde bevindt zich de ruime eetkamer met brede raampartijen en karakteristieke plafonddetails, waardoor ook hier een prettige lichtinval aanwezig is. Grenzend aan de woon-/eetkamer liggen 2 goed bemeten slaapkamers, beide voorzien van vaste kasten en een eigen wastafel. De slaapkamer aan de achterzijde is extra ruim en rustig gelegen.

De keuken ligt apart aan de achterzijde en is voorzien van diverse inbouwapparatuur, waaronder een gaskookplaat, afzuigkap, oven en vaatwasser. Dankzij de brede ramen is ook hier veel daglicht en een prettig uitzicht. In de hal bevinden zich verder een aparte douche, een separaat toilet en een praktische kast met wasmachineaansluiting.

Aan de hal aan de voorzijde bevindt zich een derde (slaap)kamer met wastafel en vaste kast. Deze ruimte is ideaal als werk-, studeer- of logeerkamer en biedt tevens mogelijkheden voor het realiseren van een grotere badkamer.

Bijzonderheden:
– Het bouwjaar betreft 1909.
– De woonoppervlakte bedraagt 96 m².
– Er is geen actieve VvE. Indien nodig kan er een verklaring worden opgesteld dat de VvE opgericht zal worden.
– Definitief energielabel F, geldig tot en met 20-02-2036.
– Woning gelegen op eigen grond.
– Het appartement is centraal gelegen nabij diverse uitvalswegen, het OV en winkelvoorzieningen.
– Op deze overeenkomst zijn de ouderdoms-, asbest- en niet-bewonersclausule van toepassing.

Vraagprijs: € 375.000,- k.k.
Oplevering: In overleg.

GEÏNTERESSEERD IN DEZE WONING? NEEM GERUST EEN EIGEN AANKOOPMAKELAAR MEE!

Kenmerken
  • Vraagprijs € 375.000,-
  • Status Beschikbaar
  • Aanvaarding In overleg
  • Eigendomssituatie Volle eigendom
  • Bouwjaar 1909
  • Daktype Plat dak
  • Woonoppervlakte 96 m²
  • Inhoud 367 m³
  • Aantal kamers 5 (3 slaapkamers)
  • Aantal woonlagen 1
  • Voorzieningen Natuurlijke ventilatie
  • Energielabel F
  • Verwarming Cv ketel
  • Warm water Cv ketel
  • Ligging Aan drukke weg, in woonwijk, vrij uitzicht
  • Soort parkeergelegenheid Openbaar parkeren, betaald parkeren
Foto’s en video’s
Virtuele tour
Plattegronden
"Een sfeervol 5-kamerappartement met hoge plafonds en volop mogelijkheden om het geheel naar eigen wens te maken!"
Makelaar
Rachel Kleer Assistent Register Makelaar/Taxateur
Over dit huis
  • Dit charmante appartement beschikt over een woonkamer ensuite met schuifdeuren, sierplafonds en een open haard
  • U woont hier op korte afstand van winkels, horeca en openbaar vervoer, met het centrum én het strand binnen handbereik.
  • Dankzij de gunstige ligging én een mix van voorzieningen is Valkenboskwartier een fijne thuisbasis voor jonge professionals, gezinnen en iedereen die het stadsleven met gezelligheid en karakter wil combineren.
Rachel Kleer

Assistent Register Makelaar/Taxateur

Bezichtiging plannen?

Bent u geïnteresseerd in de woning? En wilt u eens binnen kijken?

Bezichtiging plannen
Gratis zoekopdracht Download brochure
Ontdek de omgeving

Niet gevonden wat je zoekt?

cta-img

Een afspraak plannen

We helpen je graag verder met jouw woonwensen, laat je gegevens en bericht achter!

Dit veld is bedoeld voor validatiedoeleinden en moet niet worden gewijzigd.

Bezichtiging plannen

Vul onderstaand formulier in om een bezichtiging te plannen

Taxatie aanvragen

Vul onderstaand formulier in om een taxatie in te plannen