Over dit huis
- 4 slaapkamers
- 2 badkamers
- Zonnige tuin én dakterras
Omschrijving
‘RUIME EN GOED ONDERHOUDEN HOEKWONING MET 4 SLAAPKAMERS, TWEE BADKAMERS, EEN ZONNIGE TUIN ÉN DAKTERRAS’
Deze ruime, speels ingedeelde hoekwoning aan de Tjalk 1 in Honselersdijk biedt volop leefruimte, comfort en mogelijkheden. Met een woonoppervlakte van maar liefst 166 m², een zonnige achtertuin, inpandige garage/berging, dakterras én vier slaapkamers is dit een ideale gezinswoning. De woning is goed onderhouden en voorzien van volledige isolatie, HR+ en HR++ beglazing en beschikt over energielabel B.
Locatie:
De gezellige dorpskern van Honselersdijk bevindt zich op korte loopafstand, evenals diverse scholen en sportfaciliteiten. Het centrum van Naaldwijk en recreatiegebied De Wollebrand zijn binnen tien minuten per fiets bereikbaar. Dankzij de centrale ligging in het Westland zijn uitvalswegen zoals de A4, A12 en de Veilingroute (N213) eenvoudig bereikbaar.
Indeling
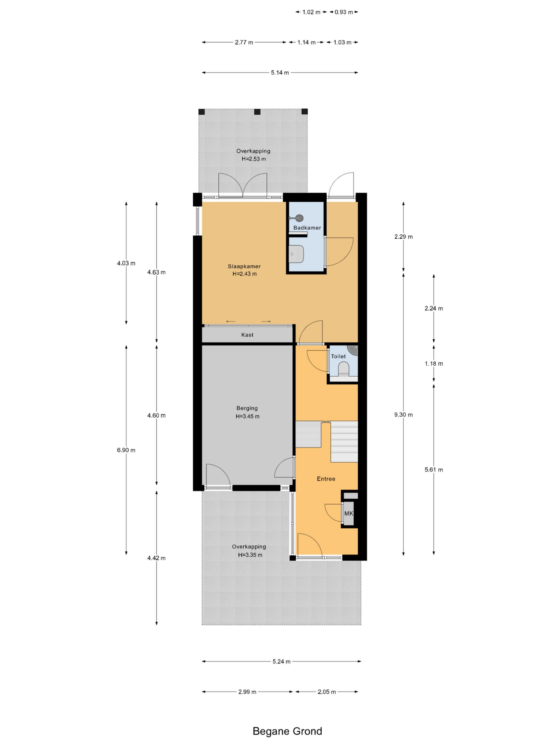
Begane grond
Via de voortuin met overkapping betreedt u de hal van de woning. De entreehal geeft toegang tot een modern toilet, de trapopgang, meterkast, vaste kast en de ruime inpandige berging. Aan de achterzijde van de woning bevindt zich een slaapkamer met aangrenzende badkamer, voorzien van een inloopdouche, wastafel en toilet. Deze ruimte is ideaal voor wie een slaap- of werkplek op de begane grond wenst.
Via openslaande deuren heeft u toegang tot de zonnige achtertuin, gelegen op het zuidwesten. De tuin is verzorgd aangelegd, beschikt over een overkapping, een achterom en meet in totaal ca. 78 m², waarvan 43 m² achtertuin.
Eerste verdieping
De lichte en sfeervolle woonkamer bevindt zich aan de achterzijde van de woning en biedt toegang tot een ruim dakterras, gelegen op het zonnige zuidwesten. Aan de voorzijde treft u de open keuken, uitgerust met inbouwapparatuur (2006). Daarnaast is er op deze verdieping een separaat toilet aanwezig. Dankzij de hoekligging geniet deze etage van veel natuurlijke lichtinval, en is de gehele verdieping afgewerkt met een mooie eikenhouten vloer.
Tweede verdieping
Op de tweede verdieping bevinden zich 3 slaapkamers en een ruime badkamer, ingericht met een ligbad, douche, dubbele wastafel en toilet. Daarnaast is er een aparte wasruimte met aansluitingen voor de wasmachine en droger.
Bijzonderheden:
– Bouwjaar van de woning betreft 1998.
– De woonoppervlakte bedraagt 166 m2 en de perceeloppervlakte 130 m2.
– Er is een definitief energielabel B.
– Buitenschilderwerk uitgevoerd in 2024.
– Hardhouten kozijnen met HR+ en HR++ glas.
– Tuin en dakterras op het zonnige zuidwesten.
– In de directe omgeving is er voldoende parkeergelegenheid aanwezig.
Vraagprijs: € 595.000,- k.k.
Oplevering: In overleg.
GEÏNTERESSEERD IN DEZE WONING? NEEM GERUST UW EIGEN AANKOOPMAKELAAR MEE!
Kenmerken
- Vraagprijs € 595.000,-
- Status Onder bod
- Aanvaarding In overleg
- Eigendomssituatie Volle eigendom
- Soort woonhuis Hoekwoning
- Bouwjaar 1998
- Daktype Plat dak
- Woonoppervlakte 166 m²
- Perceeloppervlakte 130 m²
- Inhoud 571 m³
- Aantal kamers 5 (4 slaapkamers)
- Aantal badkamers 2 badkamers
- Badkamervoorzieningen Wastafel, inloopdouche, ligbad, toilet, douche, dubbele wastafel, wastafelmeubel
- Aantal woonlagen 3
- Voorzieningen Mechanische ventilatie, schuifpui, glasvezel kabel
- Energielabel B
- Isolatie Dakisolatie, muurisolatie, hr glas
- Verwarming Cv ketel
- Warm water Cv ketel
- Ligging In woonwijk
- Tuin Achtertuin
- Tuinoppervlakte 42 m²
- Tuin ligging Zuidwest
- Soort parkeergelegenheid Openbaar parkeren
Foto’s en video’s
Virtuele tour
Plattegronden
Over dit huis
- 4 slaapkamers
- 2 badkamers
- Zonnige tuin én dakterras
Bezichtiging plannen?
Bent u geïnteresseerd in de woning? En wilt u eens binnen kijken?
Bezichtiging plannenOntdek de omgeving
Niet gevonden wat je zoekt?

Een afspraak plannen
We helpen je graag verder met jouw woonwensen, laat je gegevens en bericht achter!
Bezichtiging plannen
Vul onderstaand formulier in om een bezichtiging te plannen
Taxatie aanvragen
Vul onderstaand formulier in om een taxatie in te plannen