Rijnvaartweg 47
- 146m²
- 132m²
- 6
Over dit huis
- 4 slaapkamers
- Energielabel A
- Achtertuin én een dakterras!
Omschrijving
“WONEN AAN EEN AUTOVRIJ HOFJE, PAL NAAST HET RIJNVAARTPARK EN MET VOLOP RUIMTE VOOR HET HELE GEZIN, DAT KAN AAN DE RIJNVAARTWEG 47!”
Aan een kindvriendelijk en autovrij hofje ligt deze goed onderhouden eengezinswoning met een woonoppervlakte van ca. 146 m2. De woning beschikt over een doorzonwoonkamer, een open keuken, maar liefst vier slaapkamers, een zonnige tuin én een groot dakterras.
Ligging
De woning grenst direct aan het Rijnvaartpark en ligt bovendien op korte afstand van de Plas van Alle Winden, een heerlijke plek om te wandelen of te ontspannen. Dankzij de rustige, autoluwe ligging is dit hofje ideaal voor gezinnen met kinderen. Toch woont u op korte afstand van alle voorzieningen: scholen, sportfaciliteiten, supermarkten, het centrum van ’s-Gravenzande en de uitvalswegen richting Den Haag, Rotterdam en Delft.
Indeling
Begane grond
Via de voortuin bereikt u de entree van de woning met hal, meterkast, toiletruimte en trapopgang. De woonkamer beschikt over een nette plavuizen vloer met vloerverwarming. Aan de voorzijde van de woning is de zithoek gecreëerd en aan de achterzijde is de halfopen keuken gesitueerd. De halfopen keuken is in L-opstelling uitgevoerd en is voorzien van een koelkast, vriezer, oven, inductiekookplaat, vaatwasser, spoelbak met mengkraan, close-in boiler en voldoende opbergruimte. De achtertuin is te bereiken via de openslaande deuren aan de achterzijde.
De achtertuin van ca. 12 meter diep ligt op het noordoosten en is ingericht met bestrating, beplanting en een vrijstaande berging. Tevens is er ook een achterom aanwezig.
Eerste verdieping
Op de eerste verdieping bevinden zich drie ruim bemeten slaapkamers en een badkamer. Zowel de overloop als de slaapkamers zijn afgewerkt met vloerbedekking. De badkamer beschikt over een ligbad, douche, toilet, wastafel en radiator.
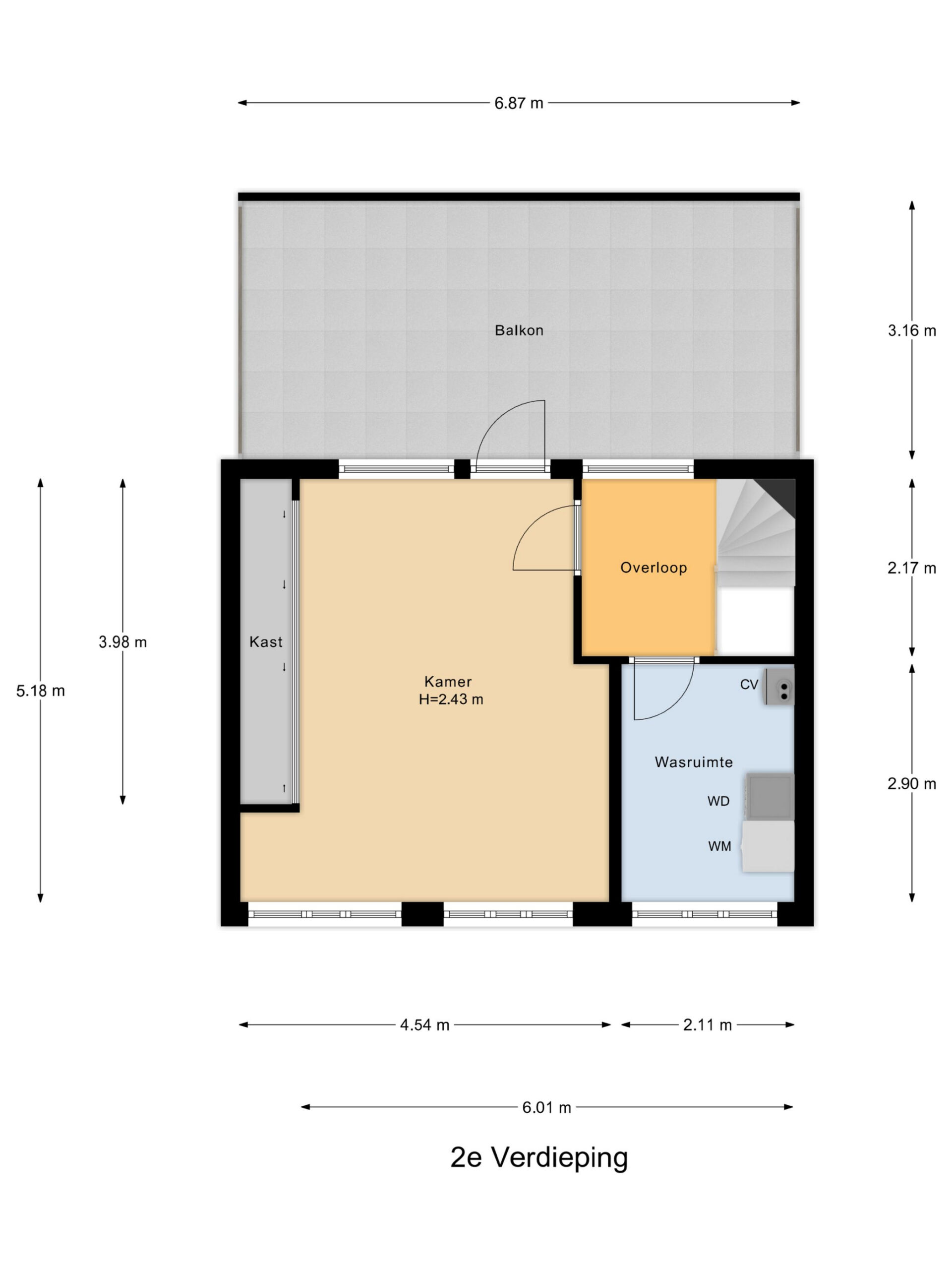
Tweede verdieping
De tweede verdieping biedt een ruime vierde slaapkamer met vaste kastenwand en toegang tot het dakterras. Hier geniet u van veel privacy en een vrij uitzicht op het Rijnvaartpark. Ook is er op deze verdieping een praktische wasruimte met cv-opstelling (2015) en aansluitingen voor wasmachine en droger.
Bijzonderheden:
– Het bouwjaar betreft 1998.
– De woonoppervlakte bedraagt ca. 146 m2, en het perceeloppervlakte bedraagt 132 m2.
– Er is een definitief energielabel A aanwezig (geldig t/m 01-07-2035).
– Houten kozijnen met HR+ glas.
– De cv-ketel komt uit 2015.
– Er zijn 12 zonnepanelen aanwezig (2018).
Vraagprijs: € 575.000,- k.k.
Oplevering: In overleg
Kenmerken
- Vraagprijs € 575.000,-
- Status Beschikbaar
- Aanvaarding In overleg
- Eigendomssituatie Volle eigendom
- Soort woonhuis Tussenwoning
- Bouwjaar 1998
- Daktype Plat dak
- Woonoppervlakte 146 m²
- Perceeloppervlakte 132 m²
- Inhoud 473 m³
- Aantal kamers 6 (4 slaapkamers)
- Aantal badkamers 1 badkamer
- Badkamervoorzieningen Ligbad, toilet, wastafel, inloopdouche
- Aantal woonlagen 3
- Voorzieningen Mechanische ventilatie, glasvezel kabel, zonnepanelen
- Energielabel A
- Isolatie Dakisolatie, muurisolatie, hr glas
- Verwarming Cv ketel, vloerverwarming gedeeltelijk
- Warm water Cv ketel, elektrische boiler eigendom
- Ligging Aan rustige weg, in woonwijk
- Tuin Achtertuin
- Tuinoppervlakte 67 m²
- Tuin ligging Noordoost
- Soort parkeergelegenheid Openbaar parkeren
Foto’s en video’s
Virtuele tour
Plattegronden
Over dit huis
- 4 slaapkamers
- Energielabel A
- Achtertuin én een dakterras!
Bezichtiging plannen?
Bent u geïnteresseerd in de woning? En wilt u eens binnen kijken?
Bezichtiging plannenOntdek de omgeving
Niet gevonden wat je zoekt?

Een afspraak plannen
We helpen je graag verder met jouw woonwensen, laat je gegevens en bericht achter!
Bezichtiging plannen
Vul onderstaand formulier in om een bezichtiging te plannen
Taxatie aanvragen
Vul onderstaand formulier in om een taxatie in te plannen