Broch Makelaars
Broch Makelaars
Hortensiastraat 22, Monster - Broch Makelaars
Alle foto’s
Monster

Hortensiastraat 22

  • 105m²
  • 133m²
  • 5
€ 469.000 k.k.
Over dit huis
  • 10 Zonnepanelen en aircosysteem
  • 4 Slaapkamers
  • Energielabel B
Omschrijving

“SFEERVOLLE TUSSENWONING MET MODERNE AFWERKING, 4 SLAAPKAMERS EN DIEPE ACHTERTUIN”

Aan de Hortensiastraat staat deze goed onderhouden tussenwoning met een zonnige achtertuin, moderne keuken en badkamer én energielabel B. de woning is door de jaren heen met zorg gemoderniseerd en biedt volop woonruimte voor het hele gezin. Gelegen op korte afstand van het centrum van Monster, met het strand eveneens binnen handbereik.

Locatie
De ligging is uitstekend: nabij het centrum van Monster en op fietsafstand van het strand. In de directe omgeving zijn alle voorzieningen aanwezig die het dagelijks leven comfortabel maken, zoals winkels, scholen, sportverenigingen en recreatiegebied Madestein. Ook Kijkduin en Den Haag zijn dankzij de goede verbindingen snel bereikbaar.

Indeling
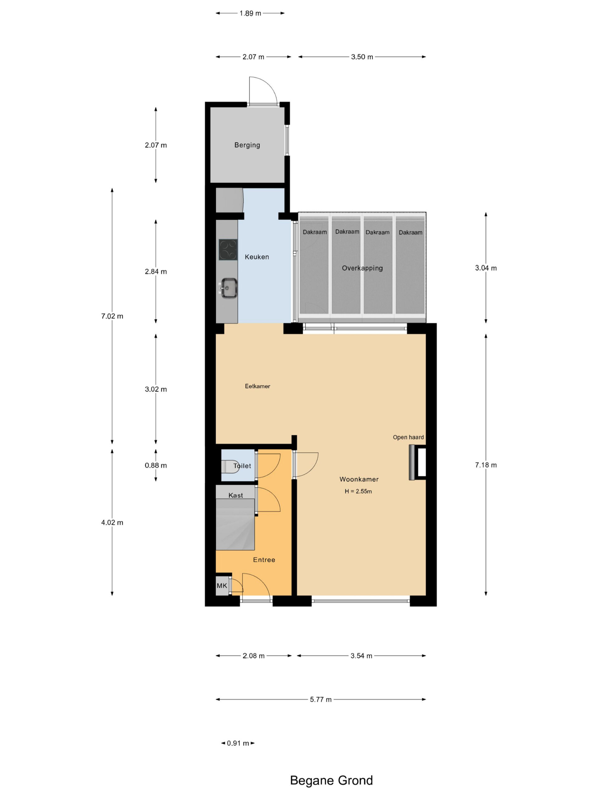
Begane grond
Via de voortuin bereikt u de entree. De hal is ruim en voorzien van een moderne meterkast, trapopgang, trapkast met extra bergruimte en een toiletruimte. Vanuit de hal heeft u toegang tot de lichte doorzonwoonkamer. Grote raampartijen aan zowel de voor- als achterzijde zorgen voor veel daglicht en een open sfeer. De woonkamer biedt ruimte voor een royale zit- en eethoek. Verder is de woonkamer voorzien van een aircosysteem, een elektrische kachel en een loopdeur naar de zonnige achtertuin. In de uitbouw aan de achterzijde bevindt zich de open keuken, uitgerust met diverse inbouwapparatuur.

De achtertuin is gunstig gelegen op het zuidoosten en biedt daardoor volop zon. De inrichting is onderhoudsvriendelijk met een mix van sierbestrating, kunstgras en groene borders met vaste beplanting. Er is voldoende ruimte voor een comfortabele lounge- of eethoek. Aangrenzend aan de woning bevindt zich een berging met elektra. De tuin is tevens bereikbaar via een handige achterom.

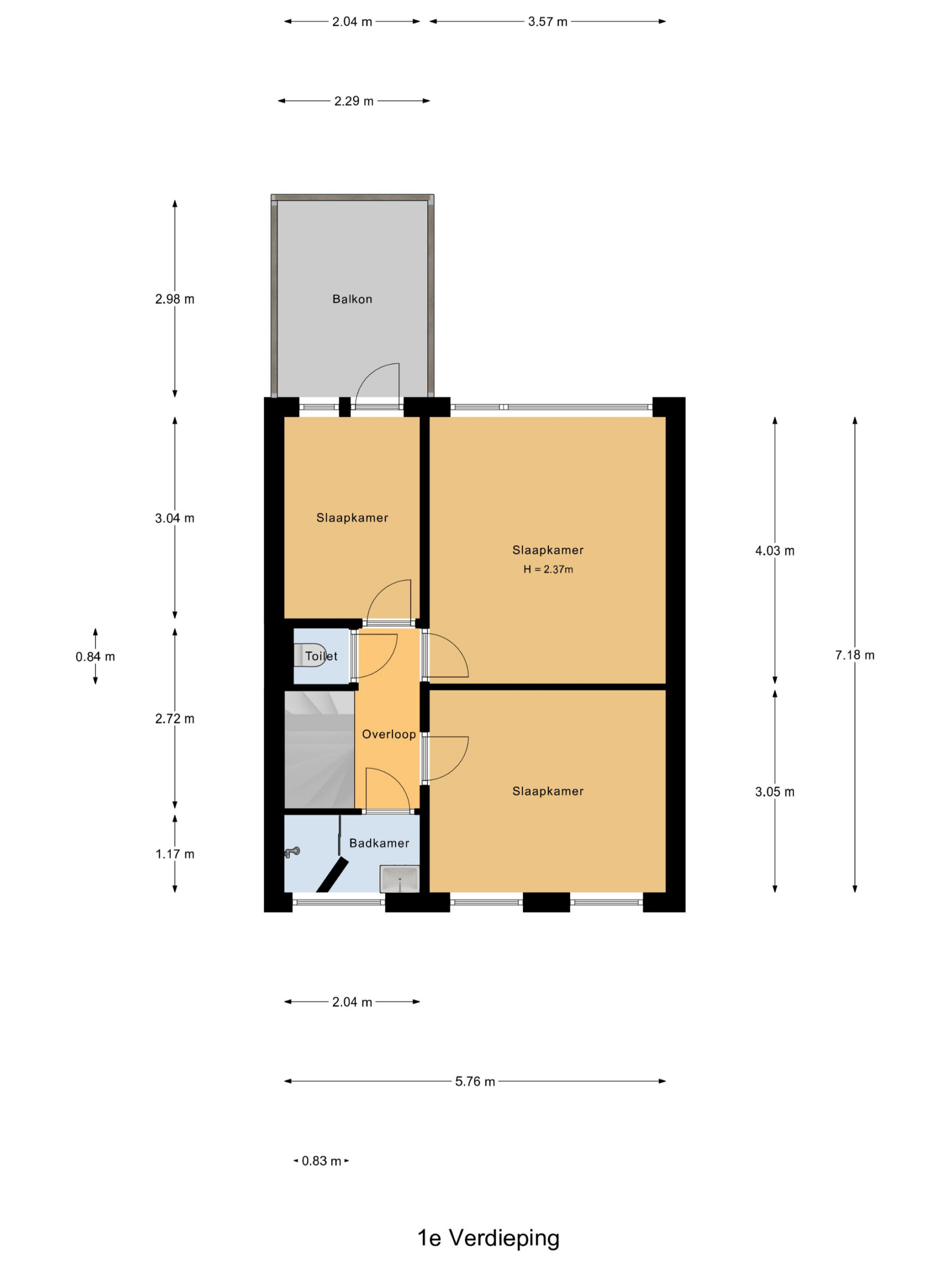
Eerste verdieping
De overloop biedt toegang tot drie slaapkamers, de badkamer en een separaat toilet. De slaapkamers zijn van goed foormaat en voorzien van kunststof kozijnen met HR++-beglazing. De slaapkamer aan de achterzijde beschikt over een toegangsdeur naar het balkon. De badkamer is in 2023 vernieuwd en uitgevoerd in een eigentijdse stijl met een inloopdouche, wastafelmeubel en designradiator. Alle slaapkamers op deze verdieping zijn voorzien van rolluiken.

Tweede verdieping
Via een vaste trap bereikt u de tweede verdieping. Hier bevindt zich een ruime vierde slaapkamer, voorzien van daglicht en knieschotten voor extra bergruimte. Op de voorzolder zijn de cv-installatie en de aansluitingen voor wasmachine en droger geplaatst.

Bijzonderheden:
• Het bouwjaar betreft 1962.
• De woonoppervlakte bedraagt 105 m2 en het perceeloppervlak bedraagt 133 m2
• Er is een definitief energielabel B aanwezig (geldig t/m 29-07-2032).
• De woning beschikt over 10 zonnepanelen (2020).
• Kunststof kozijnen met HR++-glas (m.u.v. voordeur en doucheraam).
• Cv-ketel (2006).
• Zonnige achtertuin op het zuidoosten met berging en achterom.

Vraagprijs: € 469.000,- k.k.
Oplevering: In overleg.

GEÏNTERESSEERD IN DEZE WONING? NEEM GERUST UW EIGEN AANKOOPMAKELAAR MEE!

Kenmerken
  • Vraagprijs € 469.000,-
  • Status Beschikbaar
  • Aanvaarding In overleg
  • Eigendomssituatie Volle eigendom
  • Soort woonhuis Tussenwoning
  • Bouwjaar 1962
  • Daktype Zadeldak
  • Woonoppervlakte 105 m²
  • Perceeloppervlakte 133 m²
  • Inhoud 385 m³
  • Aantal kamers 5 (4 slaapkamers)
  • Aantal badkamers 1 badkamer
  • Badkamervoorzieningen Wastafel, wastafelmeubel, inloopdouche
  • Aantal woonlagen 3
  • Voorzieningen Rolluiken, dakraam, zonnepanelen
  • Energielabel B
  • Isolatie Muurisolatie, vloerisolatie
  • Verwarming Cv ketel, elektrische verwarming
  • Warm water Cv ketel
  • Ligging In centrum, in woonwijk
  • Tuin Achtertuin
  • Tuinoppervlakte 52 m²
  • Tuin ligging Zuidoost
  • Soort parkeergelegenheid Openbaar parkeren
Foto’s en video’s
Virtuele tour
Plattegronden
"Sfeervolle tussenwoning met moderne afwerking, 4 slaapkamers en diepe achtertuin!"
Makelaar
Over dit huis
  • 10 Zonnepanelen en aircosysteem
  • 4 Slaapkamers
  • Energielabel B

Bezichtiging plannen?

Bent u geïnteresseerd in de woning? En wilt u eens binnen kijken?

Bezichtiging plannen
Gratis zoekopdracht Download brochure
Ontdek de omgeving

Niet gevonden wat je zoekt?

cta-img

Een afspraak plannen

We helpen je graag verder met jouw woonwensen, laat je gegevens en bericht achter!

Dit veld is bedoeld voor validatiedoeleinden en moet niet worden gewijzigd.

Bezichtiging plannen

Vul onderstaand formulier in om een bezichtiging te plannen

Taxatie aanvragen

Vul onderstaand formulier in om een taxatie in te plannen