Broch Makelaars
Broch Makelaars
Havenstraat 18ap17, Monster - Broch Makelaars
Alle foto’s
Monster

Havenstraat 18Ap17

  • 60m²
  • 3
€ 350.000 k.k.
Over dit huis
  • Instapklaar appartement
  • Bovenwoning
  • Energielabel C
Omschrijving

‘WELKOM IN DIT MODERNE EN SFEERVOLLE 3-KAMERAPPARTEMENT VAN CA. 60 M2, GELEGEN OP DE DERDE VERDIEPING VAN HET VOORMALIGE ST. JOSEPHKLOOSTER!’

Wonen op een fijne plek in Monster? Dit nette 3-kamerappartement ligt op de derde verdieping van een statig gebouw aan de Havenstraat. Met circa 60 m² woonoppervlakte is de woning praktisch ingedeeld en beschikt over een lichte woonkamer met open keuken en balkon, twee slaapkamers en een moderne badkamer. Het moderne aircosysteem zorgt voor een aangenaam binnenklimaat, het hele jaar door. Een leuke en complete woning, perfect voor starters op de woningmarkt!

Locatie:
Het gehele St. Josephklooster is in 1997 grondig gerenoveerd, waarbij de oorspronkelijke uitstraling zorgvuldig is behouden. Het appartement ligt op korte loopafstand van het gezellige centrum van Monster met winkels en supermarkten binnen handbereik. Daarnaast bevinden het strand en de uitvalswegen richting het Westland zich in de directe omgeving, wat zorgt voor een zeer prettige en centrale ligging.

Indeling:
Appartementencomplex:
Het appartementencomplex beschikt over diverse praktische voorzieningen, waaronder een afgesloten inpandige entree met intercominstallatie, een lift en een trappenhuis. Daarnaast heeft het appartement de beschikking over een eigen (fietsen)berging in de onderbouw.

Appartement (derde verdieping):
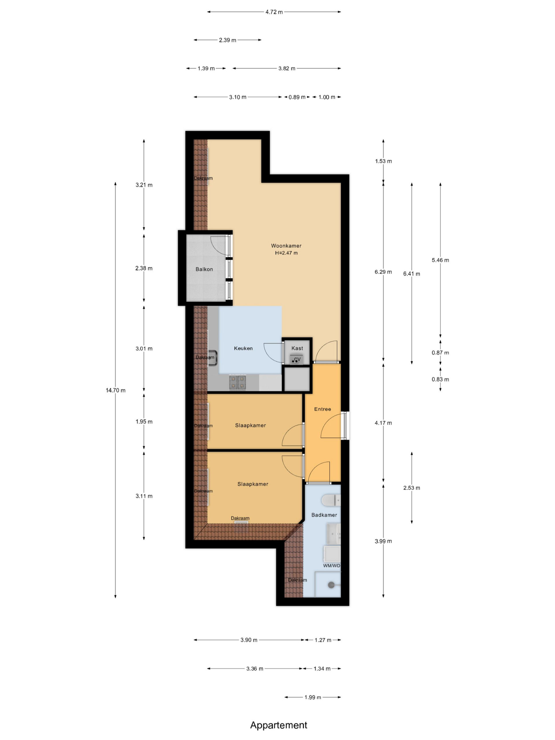
Bij binnenkomst betreedt u de entree met hal, die toegang biedt tot alle vertrekken van het appartement. Aan de linkerzijde bevindt zich de badkamer (2015), uitgevoerd in een neutrale kleurstelling en voorzien van een inloopdouche, toilet, wastafelmeubel en de opstelling voor wasmachine en droger. Het dakraam zorgt hier voor prettige daglichttoetreding en natuurlijke ventilatie.
Het appartement beschikt over twee goed bemeten slaapkamers, beide uitgerust met een airco.
Aan het einde van de hal bereikt u de woonkamer met open keuken. De keuken (2015) is uitgevoerd in een moderne zwart-witte kleurstelling en voorzien van een spoelbak met mengkraan, een 4-pits gaskookplaat met afzuigkap, een koel-/vriescombinatie en een vaatwasser. Aangrenzend bevindt zich een praktische bergkast met de opstelling van de cv-ketel (2015) en de box van de mechanische ventilatie.
Via de openslaande deur in de woonkamer heeft u toegang tot het balkon, waar u vrij uitkijkt over de weidse omgeving. Dankzij de grote raampartijen is de woonkamer aangenaam licht en prettig om in te verblijven.

Bijzonderheden:
– Het bouwjaar betreft 1997.
– De woonoppervlakte bedraagt ca. 60 m2.
– Er is een definitief energielabel C aanwezig (geldig t/m 31-10-2035).
– De maandelijkse VvE bijdrage bedraagt: € 253,23.
– Balkon gelegen op het noordoosten.
– De woning is voorzien van een aircosysteem (intern systeem op water).
– Voldoende parkeergelegenheid in de omgeving.
– In de koopovereenkomst wordt een ouderdomsclausule opgenomen.

Vraagprijs: € 350.000,- k.k.
Oplevering: In overleg.

Kenmerken
  • Vraagprijs € 350.000,-
  • Status Onder bod
  • Aanvaarding In overleg
  • Eigendomssituatie Volle eigendom
  • Bouwjaar 1997
  • Daktype Samengesteld dak
  • Woonoppervlakte 60 m²
  • Inhoud 189 m³
  • Aantal kamers 3 (2 slaapkamers)
  • Aantal badkamers 1 badkamer
  • Badkamervoorzieningen Toilet, wastafelmeubel, inloopdouche, wasmachineaansluiting
  • Aantal woonlagen 1
  • Voorzieningen Mechanische ventilatie, airconditioning
  • Energielabel C
  • Isolatie Dubbel glas
  • Verwarming Cv ketel
  • Warm water Cv ketel
  • Ligging In centrum
  • Soort parkeergelegenheid Openbaar parkeren
Foto’s en video’s
Virtuele tour
Plattegronden
"Modern en sfeervol 3-kamerappartement in het voormalige st. Josephklooster"
Makelaar
Rachel Kleer Assistent Register Makelaar/Taxateur
Over dit huis
  • Instapklaar appartement
  • Bovenwoning
  • Energielabel C
Rachel Kleer

Assistent Register Makelaar/Taxateur

Bezichtiging plannen?

Bent u geïnteresseerd in de woning? En wilt u eens binnen kijken?

Bezichtiging plannen
Gratis zoekopdracht Download brochure
Ontdek de omgeving

Niet gevonden wat je zoekt?

cta-img

Een afspraak plannen

We helpen je graag verder met jouw woonwensen, laat je gegevens en bericht achter!

Dit veld is bedoeld voor validatiedoeleinden en moet niet worden gewijzigd.

Bezichtiging plannen

Vul onderstaand formulier in om een bezichtiging te plannen

Taxatie aanvragen

Vul onderstaand formulier in om een taxatie in te plannen