Broch Makelaars
Broch Makelaars
Groeneveldstraat 29, Monster - Broch Makelaars
Alle foto’s
Monster

Groeneveldstraat 29

  • 118m²
  • 107m²
  • 5
€ 495.000 k.k.
Over dit huis
  • Patio aan voorzijde dichtgezet en gerealiseerd als aanbouw in 2024
  • Dak vernieuwd en geïsoleerd in 2023
  • 10 Zonnepanelen met witte dakbedekking
Omschrijving

GOED ONDERHOUDEN EENGEZINSWONING MET MAAR LIEFST VIER SLAAPKAMERS IN MONSTER!

Achter deze gevel schuilt een verrassend ruime en goed onderhouden woning waar comfort en duurzaamheid hand in hand gaan. Met onder andere energielabel A, kunststof kozijnen met isolerende beglazing en een moderne cv-installatie is de woning klaar voor de toekomst. In combinatie met de lichte leefruimtes, vier slaapkamers en de zonnige achtertuin biedt deze woning alles wat je zoekt voor een fijne gezinswoning.

Locatie
De woning is gelegen in een rustige en fijne woonomgeving, op korte afstand van het centrum van Monster. In de directe nabijheid bevinden zich diverse winkels, scholen en sportvoorzieningen, waardoor alle dagelijkse voorzieningen binnen handbereik zijn. Daarnaast liggen het strand en de duinen op korte afstand, ideaal voor ontspanning en recreatie. Ook zijn de uitvalswegen richting Den Haag en omliggende Westlandse dorpen uitstekend bereikbaar.

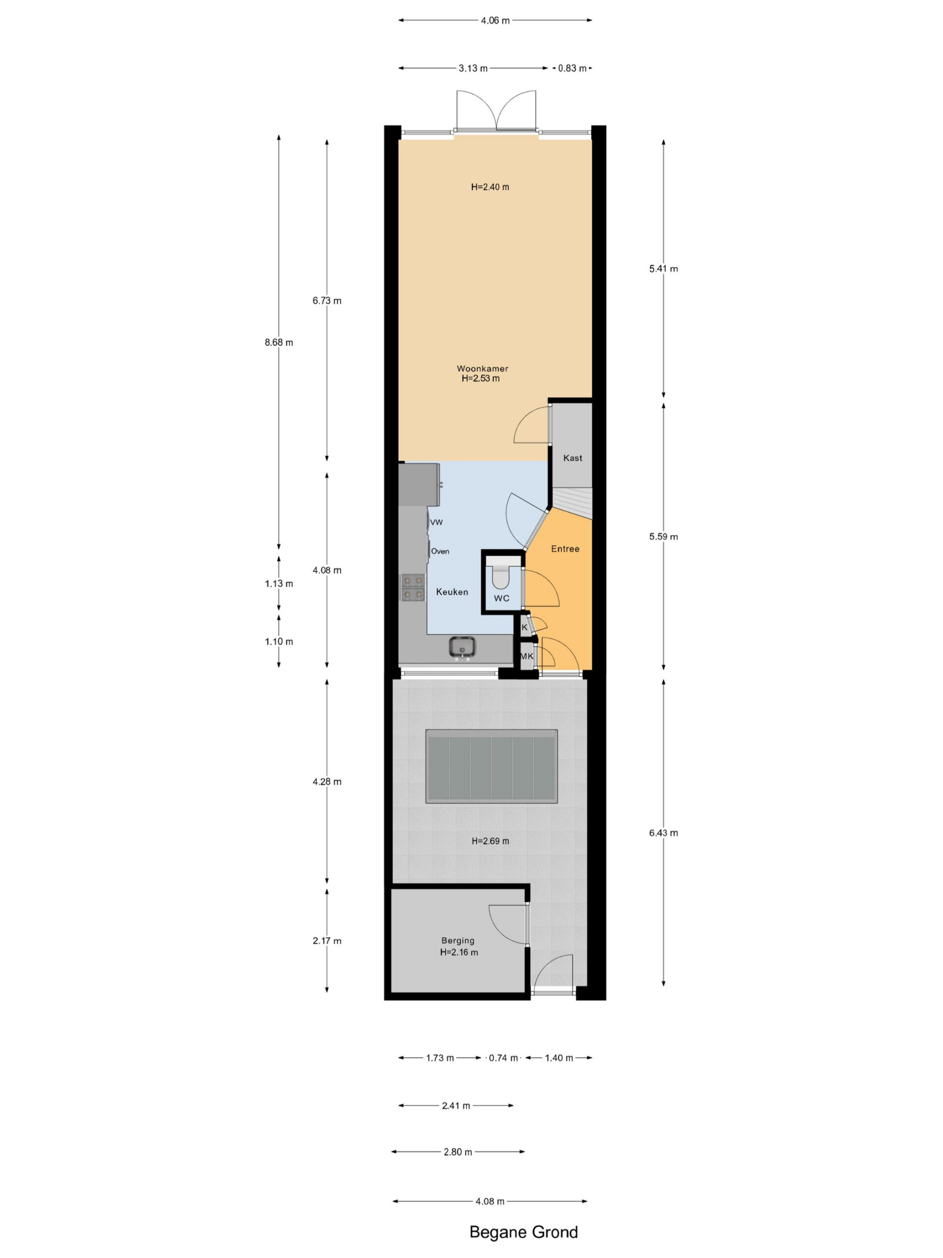
Indeling
Via de entree aan de voorzijde van de woning bereikt u eerst de patio: een verrassend veelzijdige ruimte die momenteel in gebruik is als sportruimte, maar zich ook uitstekend leent als werkplek of hobbyruimte. Vanuit de patio is tevens de vrijstaande berging bereikbaar, voorzien van elektra en ideaal voor het stallen van fietsen en het opbergen van spullen.

Vanuit de patio betreedt u de woning en komt u in de hal. Hier bevinden zich de meterkast, een toiletruimte met wandcloset, de trapopgang naar de eerste verdieping en de toegang tot de woonkamer.

Aan de voorzijde van de woning is de keuken gesitueerd. Deze is uitgevoerd in een praktische L-opstelling en beschikt over diverse inbouwapparatuur, waaronder een inductiekookplaat, afzuigkap, combi-oven, koel-vriescombinatie en vaatwasser. Daarnaast is er voldoende kastruimte aanwezig, wat de keuken zowel functioneel als prettig in gebruik maakt.

De woonkamer is aan de achterzijde gelegen en vormt een fijne, lichte leefruimte. Dankzij de grote raampartij valt er veel daglicht naar binnen. De ruimte is afgewerkt met een nette laminaatvloer en biedt voldoende plaats voor zowel een comfortabele zithoek als een ruime eettafel.

Via de woonkamer is de achtertuin bereikbaar. De tuin is verzorgd aangelegd en biedt een mooie combinatie tussen bestrating en groen. Er zijn meerdere zitplekken mogelijk, waardoor u op verschillende momenten van de dag van de zon kunt genieten. Achterin de tuin bevindt zich een extra berging, ideaal voor fietsen en extra opslag. Tevens beschikt de woning over een achterom.

Eerste verdieping
De overloop geeft toegang tot twee ruime slaapkamers en de badkamer. Aan de achterzijde bevindt zich een slaapkamer met toegang tot het balkon. Aan de voorzijde van de woning ligt een tweede slaapkamer, eveneens goed van formaat.

De badkamer is centraal gelegen en praktisch ingedeeld. Deze is voorzien van een douche, toilet en wastafelmeubel. Tevens is de badkamer voorzien van vloerverwarming.

Tweede verdieping
De overloop biedt plaats voor de opstelplaats van de cv-installatie en een praktische bergruimte. Op deze verdieping bevinden zich twee volwaardige slaapkamers. De slaapkamer aan de voorzijde is daarnaast voorzien van aansluitingen voor de wasmachine en wasdroger.

Bijzonderheden:
– Het bouwjaar betreft 1969.
– De woonoppervlakte bedraagt 118 m2 en het perceeloppervlak bedraagt 107 m2.
– Er is een definitief energielabel A aanwezig (geldig t/m 28-03-2036).
– Er zijn 10 zonnepanelen aanwezig (2023).
– Dak vernieuwd en geïsoleerd in 2023.
– De woning is voorzien van zowel kunststof en houten kozijnen.
– Cv-installatie uit 2022.
– Patio aan voorzijde dichtgezet en gerealiseerd als aanbouw in 2024.
– Het dak is voorzien van witte dakbedekking, wat zorgt voor een betere warmtewering en een hoger rendement van de zonnepanelen.

Vraagprijs: € 495.000,- k.k.
Oplevering: Per direct.

Kenmerken
  • Vraagprijs € 495.000,-
  • Status Beschikbaar
  • Aanvaarding In overleg
  • Eigendomssituatie Volle eigendom
  • Soort woonhuis Tussenwoning
  • Bouwjaar 1969
  • Daktype Plat dak
  • Woonoppervlakte 118 m²
  • Perceeloppervlakte 107 m²
  • Inhoud 490 m³
  • Aantal kamers 5 (4 slaapkamers)
  • Aantal badkamers 1 badkamer
  • Badkamervoorzieningen Toilet, wastafelmeubel, inloopdouche
  • Aantal woonlagen 3
  • Voorzieningen Mechanische ventilatie, glasvezel kabel, zonnepanelen, natuurlijke ventilatie
  • Energielabel A
  • Isolatie Dakisolatie, muurisolatie, dubbel glas
  • Verwarming Cv ketel, vloerverwarming gedeeltelijk
  • Warm water Cv ketel
  • Ligging In woonwijk
  • Tuin Achtertuin
  • Tuinoppervlakte 52 m²
  • Tuin ligging Zuidoost
  • Soort parkeergelegenheid Openbaar parkeren
Foto’s en video’s
Virtuele tour
Plattegronden
"Goed onderhouden eengezinswoning met maar liefst 4 slaapkamers in Monster"
Makelaar
Michel Broch RMT Makelaar Taxateur
Over dit huis
  • Patio aan voorzijde dichtgezet en gerealiseerd als aanbouw in 2024
  • Dak vernieuwd en geïsoleerd in 2023
  • 10 Zonnepanelen met witte dakbedekking
Michel Broch

RMT Makelaar Taxateur

Bezichtiging plannen?

Bent u geïnteresseerd in de woning? En wilt u eens binnen kijken?

Bezichtiging plannen
Gratis zoekopdracht Download brochure
Ontdek de omgeving

Niet gevonden wat je zoekt?

cta-img

Een afspraak plannen

We helpen je graag verder met jouw woonwensen, laat je gegevens en bericht achter!

Dit veld is bedoeld voor validatiedoeleinden en moet niet worden gewijzigd.

Bezichtiging plannen

Vul onderstaand formulier in om een bezichtiging te plannen

Taxatie aanvragen

Vul onderstaand formulier in om een taxatie in te plannen