Over dit huis
- Energielabel C
- 2 Slaapkamers
- 10 Zonnepanelen
Omschrijving
‘ZIET U ZICHZELF WONEN OP EEN VAN DE GEZELLIGSTE LOCATIES VAN NAALDWIJK? DAN HOEFT U NIET VERDER TE ZOEKEN!’
Geestweg 80 biedt u een ruime woonkamer, twee goed ingedeelde slaapkamers, een royale keuken in de uitbouw en zowel een zonnige voor- als achtertuin. Wat deze karakteristieke woning uit 1911 bijzonder maakt, is de duurzame staat. Dankzij gedeeltelijke dakisolatie, dubbele beglazing en maar liefst 10 zonnepanelen, gerealiseerd door de huidige eigenaar, beschikt de woning over energielabel C.
Locatie:
De woning bevindt zich aan de geliefde Geestweg, op slechts een steenworp afstand van diverse buurtwinkels en op enkele minuten lopen van het bruisende centrum van Naaldwijk. Daarnaast zijn de uitvalswegen richting de A4, A20 en de overige Westlandse dorpskernen uitstekend bereikbaar.
Indeling:
Begane grond:
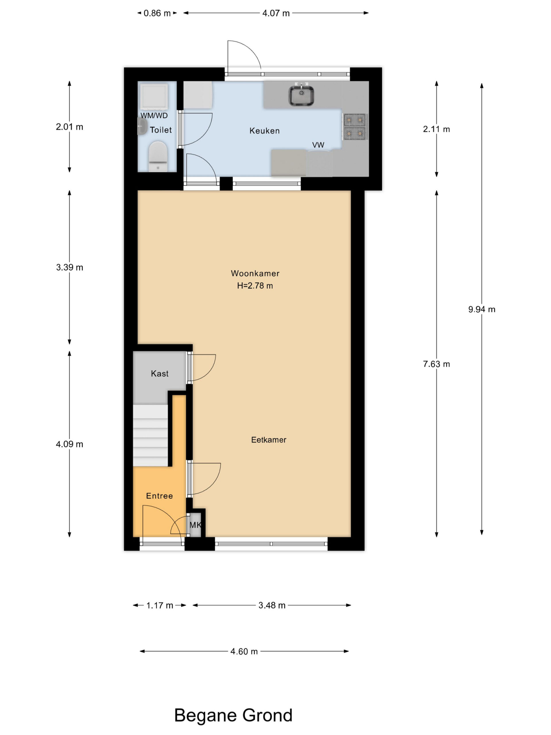
De bestraatte voortuin met sierhek biedt een uitnodigende entree en voldoende ruimte om met familie of vrienden te genieten van de avondzon. Via de voordeur betreedt u de hal, die toegang geeft tot de woonkamer en de trapopgang.
De woonkamer is aan de achterzijde uitgebouwd en voorzien van een nette laminaatvloer, glad gestuukte wanden en plafonds, en een praktische trapkast voor extra bergruimte. Dankzij de grote raampartijen is de ruimte heerlijk licht en voelt deze extra ruim aan.
Vanuit de woonkamer bereikt u de halfopen keuken, uitgerust met diverse apparatuur. Aansluitend bevindt zich een aparte wasruimte met toilet.
De achtertuin is gelegen op het noordwesten en voorzien van een praktische berging met achterom. Daarnaast biedt de voortuin de perfecte plek om op zomeravonden tot in de late uurtjes van de ondergaande zon te genieten.
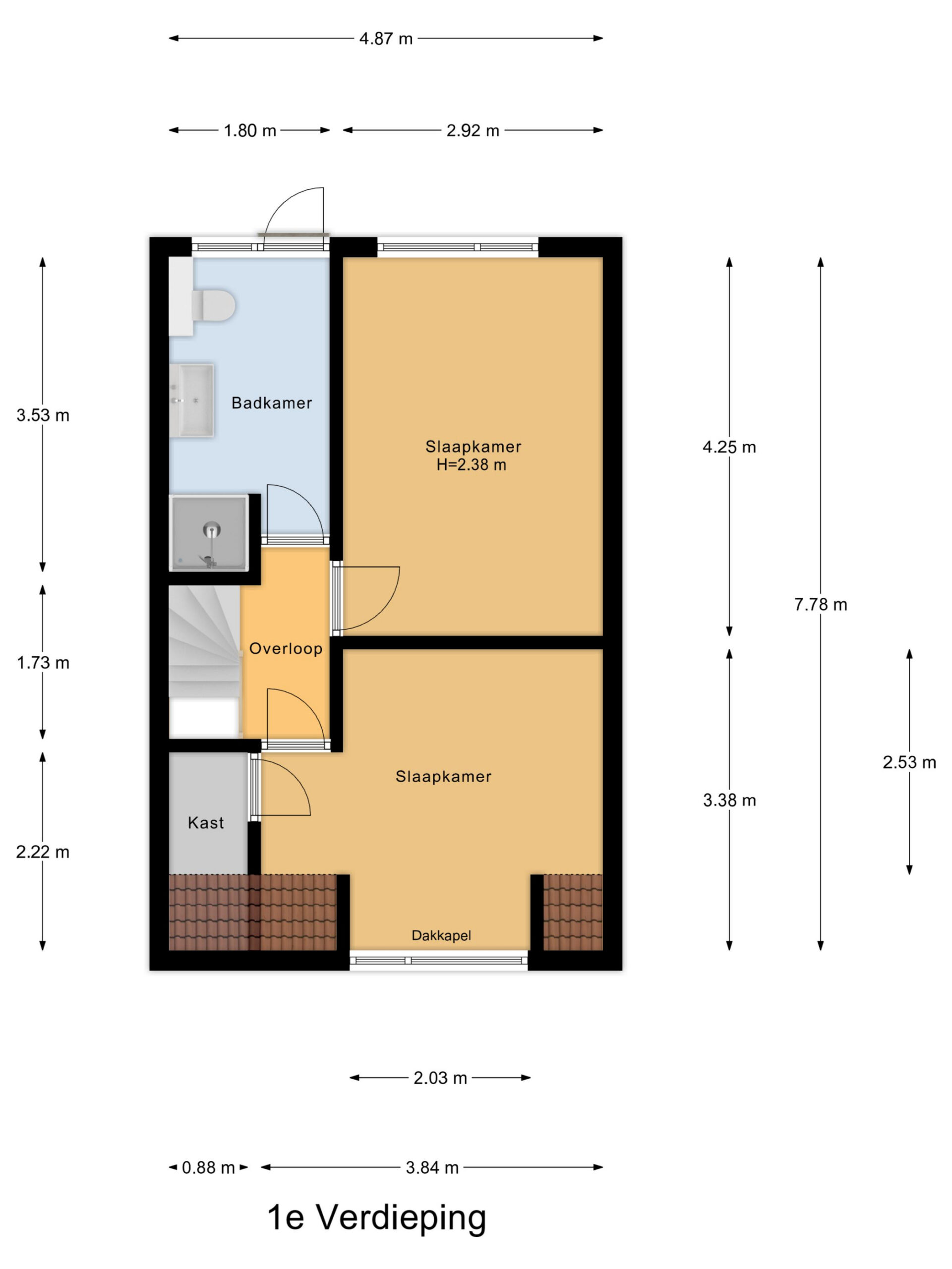
Eerste verdieping:
Via de overloop bereikt u twee slaapkamers en de ruime badkamer. Aan de achterzijde vindt u de hoofdslaapkamer en de badkamer, die is uitgevoerd in een lichte kleurstelling en voorzien van een inloopdouche, wastafelmeubel, tweede toilet en handdoekradiator.
De tweede slaapkamer ligt aan de voorzijde en wordt dankzij een dakkapel rijkelijk voorzien van daglicht. Hier bevindt zich tevens een bergkast met de opstelplaats voor de Cv-ketel. De kamer biedt voldoende ruimte voor een tweepersoonsbed, maar leent zich ook uitstekend als comfortabele thuiswerkplek.
Bijzonderheden:
• Het bouwjaar betreft 1911.
• De woonoppervlakte bedraagt 84 m2 en het perceeloppervlak bedraagt 112 m2.
• Er is een definitief energielabel C aanwezig.
• Het platte dak is in 2021 vervangen, geïsoleerd en er zijn 10 zonnepanelen aanwezig.
• De woning is grotendeels voorzien van kunststof kozijnen.
• Op loopafstand van diverse buurtwinkels en het centrum van Naaldwijk.
• De woning is grotendeels voorzien van gestuukte wanden en plafonds.
Vraagprijs: € 385.000,- k.k.
Oplevering: medio december 2025.
GEINTERESSEERD IN DEZE WONING? NEEM GERUST UW EIGEN AANKOOPMAKELAAR MEE!
Kenmerken
- Vraagprijs € 385.000,-
- Status Onder bod
- Aanvaarding In overleg
- Eigendomssituatie Volle eigendom
- Soort woonhuis Tussenwoning
- Bouwjaar 1911
- Daktype Zadeldak
- Woonoppervlakte 84 m²
- Perceeloppervlakte 112 m²
- Inhoud 293 m³
- Aantal kamers 3 (2 slaapkamers)
- Aantal badkamers 1 badkamer
- Badkamervoorzieningen Toilet, douche, wastafel, wastafelmeubel
- Aantal woonlagen 2
- Voorzieningen Glasvezel kabel, zonnepanelen
- Energielabel C
- Isolatie Dakisolatie, grotendeels dubbelglas
- Verwarming Cv ketel
- Warm water Cv ketel
- Ligging In woonwijk
- Tuin Achtertuin
- Tuinoppervlakte 22 m²
- Tuin ligging Noordoost
- Soort parkeergelegenheid Openbaar parkeren
Foto’s en video’s
Virtuele tour
Plattegronden
Over dit huis
- Energielabel C
- 2 Slaapkamers
- 10 Zonnepanelen
Bezichtiging plannen?
Bent u geïnteresseerd in de woning? En wilt u eens binnen kijken?
Bezichtiging plannenOntdek de omgeving
Niet gevonden wat je zoekt?

Een afspraak plannen
We helpen je graag verder met jouw woonwensen, laat je gegevens en bericht achter!
Bezichtiging plannen
Vul onderstaand formulier in om een bezichtiging te plannen
Taxatie aanvragen
Vul onderstaand formulier in om een taxatie in te plannen